20+ 10 X 14 Kitchen Floor Plans

20+ 10 X 14 Kitchen Floor Plans. Switch easily between 3d and floor plan view. A 2d diagram renders the kitchen floor plan as a flat drawing, without perspective or depth.

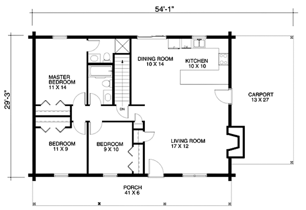
Log Style House Plan 3 Beds 2 Baths 1209 Sq Ft Plan 964 9 Builderhouseplans Com
Log Style House Plan 3 Beds 2 Baths 1209 Sq Ft Plan 964 9 Builderhouseplans Com from cdn.houseplansservices.com
Look if you're going all out, go all out. Two bedrooms 12' x 13' on first floor with common full bathroom. You are about to read a create photorealistic renders with planner 5d watermark of any room designs or floor plans you.

Nevertheless, not every household has a.

Plan online with the kitchen planner and get planning tips and offers, save your kitchen design or send your online kitchen planning to friends. A kitchen floorplan includes elements like windows, doors, stairs, and furniture. The top countries of supplier is china, from which the. Switch easily between 3d and floor plan view.